334 North Fork Road 12Black Mountain, NC 28711



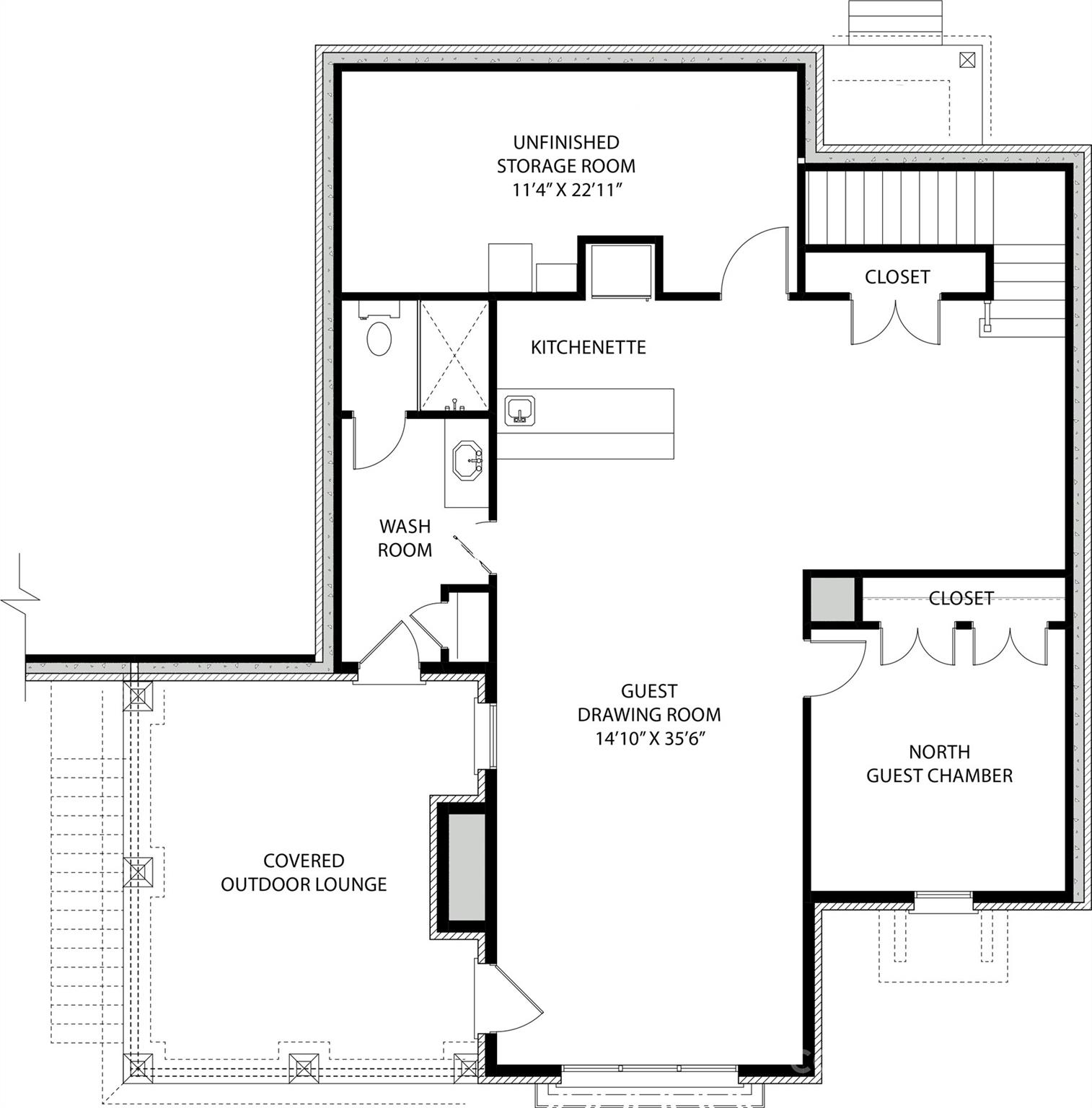
BALMRAL COTTAGE Drawing inspiration from the timeless charm of the Scottish Highlands, Balmoral Cottage embodies rustic grandeur and quiet sophistication. The natural stone façade, accented with textured pebble dash and rich timber beams, evokes the enduring beauty of English country manors — a home both grounded in tradition and alive with modern comfort. At 2,295 square feet, this three-bedroom, three-and-a-half-bath retreat unfolds across two levels of graceful living. The main level welcomes with airy, open gathering spaces that flow naturally to the screened outdoor living porch, perfect for evening fires or morning tea. Below, a recreation suite and lake-side porch extend the home’s livable charm — a seamless blend of luxury and leisure. Balmoral Cottage is not merely a residence; it is a retreat — a place where stone meets sunlight, and every detail whispers of heritage, warmth, and the enduring art of home. “Subject to final plat approval by the Town of Black Mountain. Seller reserves the right to create, retain, or grant easements affecting the subject property. CCR to be recorded prior to closing.” AN EXCLUSIVE FRUSTERIO DESIGN - CREATED IN PARTNERSHIP WITH STAG BROOK COTTAGES TO CELEBRATE CRAFTSMANSHIP, SOPHISTICATION, AND LEGACY IN EVERY DETAIL. STAG BROOK COTTAGES is a curated collection of manor-sized English-inspired cottages where timeless architecture meets modern craftsmanship, located right outside of Asheville, in Black Mountain, NC. Nestled in a tranquil setting surrounded by nature, each cottage is thoughtfully designed to reflect the charm of old-world England while embracing today’s comforts and conveniences. From distinctive façades and handcrafted details to an inviting sense of community, Stag Brook Cottages offers a place not merely to live - but to belong. - Artist’s rendering. Final design, finishes, and details may vary. - All information to be verified by buyer. - Optional elevator upgrade available on select cottages.
| 4 months ago | Listing first seen on site | |
| 4 months ago | Listing updated with changes from the MLS® |
Listings courtesy of Canopy MLS as distributed by MLS GRID. Based on information submitted to the MLS GRID as of {last_incremented_at}. All data is obtained from various sources and may not have been verified by broker or MLS GRID. Supplied Open House Information is subject to change without notice. All information should be independently reviewed and verified for accuracy. Properties may or may not be listed by the office/agent presenting the information. Some IDX listings have been excluded from this website. Properties displayed may be listed or sold by various participants in the MLS. ©2026 Canopy MLS.
The Digital Millennium Copyright Act of 1998, 17 U.S.C. § 512 (the “DMCA”) provides recourse for copyright owners who believe that material appearing on the Internet infringes their rights under U.S. copyright law. If you believe in good faith that any content or material made available in connection with our website or services infringes your copyright, you (or your agent) may send us a notice requesting that the content or material be removed, or access to it blocked. Notices must be sent in writing by email to DMCAnotice@MLSGrid.com. “The DMCA requires that your notice of alleged copyright infringement include the following information: (1) description of the copyrighted work that is the subject of claimed infringement; (2) description of the alleged infringing content and information sufficient to permit us to locate the content; (3) contact information for you, including your address, telephone number and email address; (4) a statement by you that you have a good faith belief that the content in the manner complained of is not authorized by the copyright owner, or its agent, or by the operation of any law; (5) a statement by you, signed under penalty of perjury, that the information in the notification is accurate and that you have the authority to enforce the copyrights that are claimed to be infringed; and (6) a physical or electronic signature of the copyright owner or a person authorized to act on the copyright owner’s behalf. Failure to include all of the above information may result in the delay of the processing of your complaint.
Last checked - 2026-03-14 01:16 AM UTC


Did you know? You can invite friends and family to your search. They can join your search, rate and discuss listings with you.